Мостовая переправа катамаранного типа "МПКТ-2"

| Грузоподъемность, т | 60-120 |
| Ширина проезжей части, м | 4,5-12 |
| Увеличение габарита, м | да |
| Длина звена, м | 12,5 |
| Ширина звена, м | 13,5 |
| Рекомендуемая глубина не менее, м | 1,0 |
| Допустимая скорость течения не более, м/сек | 12 |
| Изготовление наплавного моста МПКТ - 2 | от 1 800 000 р. м/п |
Варианты исполнения базовых звеньев серии
«МПКТ-2»
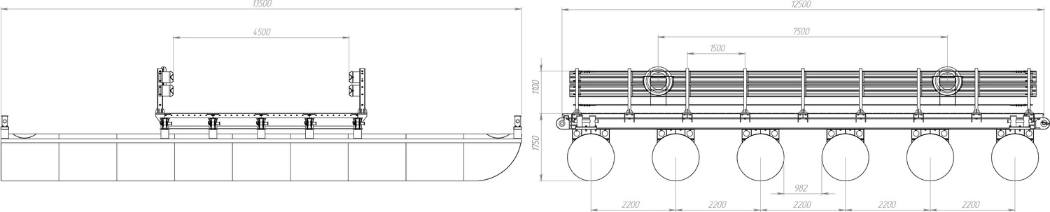
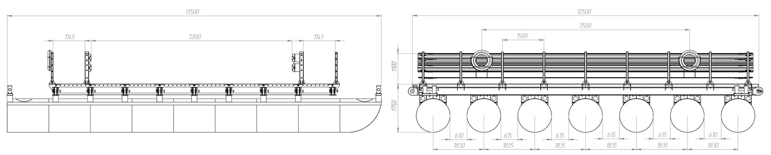
Однопутный без пешеходного тротуара «МПКТ-2.0.6-45»


Звено «МПКТ-2.0.6-45»:
Габаритные размеры, мм: 12500 х 13500 х 2500-2900
Масса = 30 т.
Грузоподъемность моста: одно звено: 25т.; два звена: 45т.; три звена и более: 60т.
Осадка в порожнем – 0,45 м.
Осадка в грузу – 0,70 м.
Удерживающая способность ограждения У2 – У4 по ГОСТ 26804-2012
*Допускается кратковременное увеличение нагрузки, но не более 10% от расчетной
*Габариты ограждения могут изменяться по расстоянию, высоте и удерживающей способности
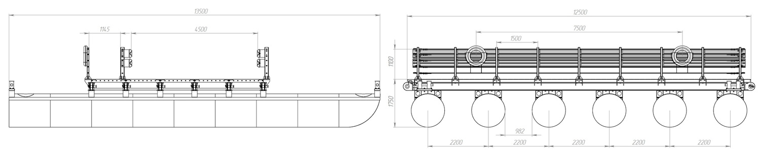
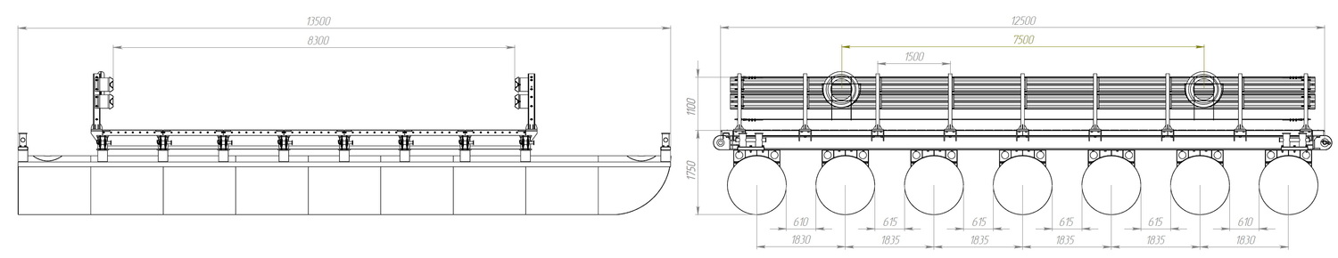
Однопутный с пешеходным тротуаром «МПКТ-2.1.6-45»


Звено «МПКТ-2.1.6-45»:
Габаритные размеры, мм: 12500 х 13500 х 2500-2900
Масса = 33 т.
Грузоподъемность моста: одно звено: 25т.; два звена: 45т.; три звена и более: 60т.
Осадка в порожнем – 0,48 м.
Осадка в грузу – 0,74 м.
Удерживающая способность ограждения У2 – У4 по ГОСТ 26804-2012
*Допускается кратковременное увеличение нагрузки, но не более 10% от расчетной
*Габариты ограждения могут изменяться по расстоянию, высоте и удерживающей способности
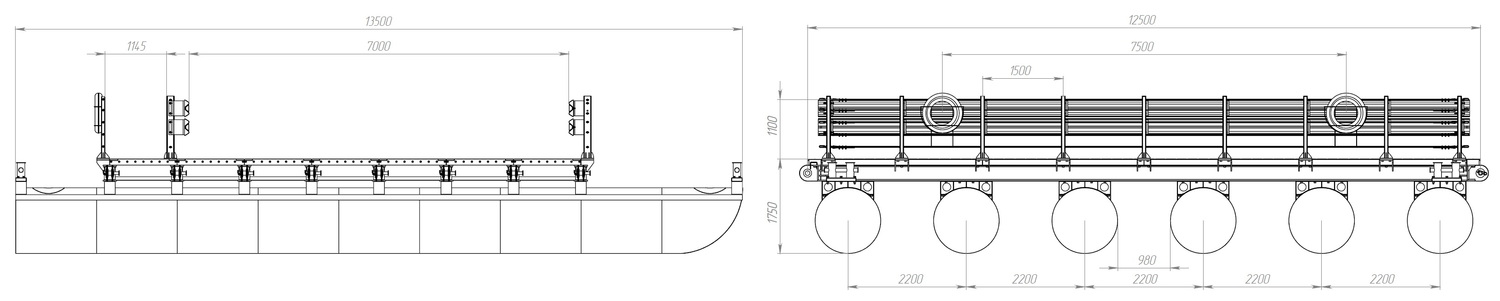
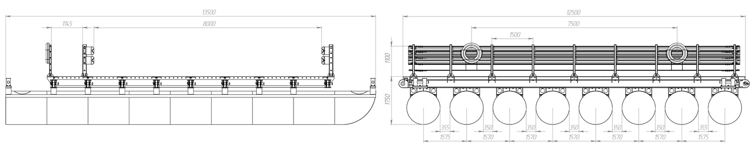
Однопутный с пешеходными тротуарами «МПКТ-2.2.6-45»


Звено «МПКТ-2.2.6-45»:
Габаритные размеры, мм: 12500 х 13500 х 2500-2900
Масса = 36 т.
Грузоподъемность моста: одно звено: 25т.; два звена: 45т.; три звена и более: 60т.
Осадка в порожнем – 0,51 м.
Осадка в грузу – 0,82 м.
Удерживающая способность ограждения У2 – У4 по ГОСТ 26804-2012
*Допускается кратковременное увеличение нагрузки, но не более 10% от расчетной
*Габариты ограждения могут изменяться по расстоянию, высоте и удерживающей способности
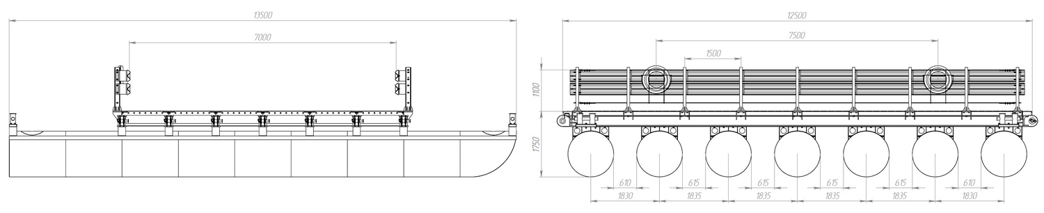
Двупутный без пешеходных тротуаров «МПКТ-2.0.6-70»


Звено «МПКТ-2.0.6-70»:
Габаритные размеры, мм: 12500 х 13500 х 2500-2900
Масса = 36 т.
Грузоподъемность моста: одно звено: 25т.; два звена: 45т.; три звена и более: 60т.
Осадка в порожнем – 0,51 м.
Осадка в грузу – 0,82 м.
Удерживающая способность ограждения У2 – У4 по ГОСТ 26804-2012
*Допускается кратковременное увеличение нагрузки, но не более 10% от расчетной
*Габариты ограждения могут изменяться по расстоянию, высоте и удерживающей способности
Двупутный с пешеходным тротуаром «МПКТ-2.1.6-70»


Звено «МПКТ-2.1.6-70»:
Габаритные размеры, мм: 12500 х 13500 х 2500-2900
Масса = 39 т.
Грузоподъемность моста: одно звено: 25т.; два звена: 45т.; три звена и более: 60т.
Осадка в порожнем – 0,54 м.
Осадка в грузу – 0,85 м.
Удерживающая способность ограждения У2 – У4 по ГОСТ 26804-2012
*Допускается кратковременное увеличение нагрузки, но не более 10% от расчетной
*Габариты ограждения могут изменяться по расстоянию, высоте и удерживающей способности
Двупутный с пешеходным тротуаром «МПКТ-2.2.6-72»


Звено «МПКТ-2.2.6-72»:
Габаритные размеры, мм: 12500 х 13500 х 2500-2900
Масса = 42 т.
Грузоподъемность моста: одно звено: 25т.; два звена: 45т.; три звена и более: 60т.
Осадка в порожнем – 0,57 м.
Осадка в грузу – 0,85 м.
Удерживающая способность ограждения У2 – У4 по ГОСТ 26804-2012
*Допускается кратковременное увеличение нагрузки, но не более 10% от расчетной
*Габариты ограждения могут изменяться по расстоянию, высоте и удерживающей способности
Однопутный без пешеходного тротуара «МПКТ-2.0.6-83»


Звено «МПКТ-2.0.6-83»:
Габаритные размеры, мм: 12500 х 13500 х 2500-2900
Масса = 39 т.
Грузоподъемность моста: одно звено: 25т.; два звена: 45т.; три звена и более: 60т.
Осадка в порожнем – 0,54 м.
Осадка в грузу – 0,86 м.
Удерживающая способность ограждения У2 – У4 по ГОСТ 26804-2012
*Допускается кратковременное увеличение нагрузки, но не более 10% от расчетной
*Габариты ограждения могут изменяться по расстоянию, высоте и удерживающей способности
Двупутный с пешеходным тротуаром «МПКТ-2.1.6-80»


Звено «МПКТ-2.1.6-80»:
Габаритные размеры, мм: 12500 х 13500 х 2500-2900
Масса = 42 т.
Грузоподъемность моста: одно звено: 25т.; два звена: 45т.; три звена и более: 60т.
Осадка в порожнем – 0,57 м.
Осадка в грузу – 0,85 м.
Удерживающая способность ограждения У2 – У4 по ГОСТ 26804-2012
*Допускается кратковременное увеличение нагрузки, но не более 10% от расчетной
*Габариты ограждения могут изменяться по расстоянию, высоте и удерживающей способности
Однопутный без пешеходного тротуара «МПКТ-2.0.7-45»


Звено «МПКТ-2.0.7-45»:
Габаритные размеры, мм: 12500 х 13500 х 2500-2900
Масса = 32 т.
Грузоподъемность моста: одно звено: 30т.; два звена: 50т.; три звена и более: 70т.
Осадка в порожнем – 0,42 м.
Осадка в грузу – 0,70 м.
Удерживающая способность ограждения У2 – У4 по ГОСТ 26804-2012
*Допускается кратковременное увеличение нагрузки, но не более 10% от расчетной
*Габариты ограждения могут изменяться по расстоянию, высоте и удерживающей способности
Однопутный с пешеходным тротуаром «МПКТ-2.1.7-45»


Звено «МПКТ-2.1.7-45»:
Габаритные размеры, мм: 12500 х 13500 х 2500-2900
Масса = 36 т.
Грузоподъемность моста: одно звено: 30т.; два звена: 50т.; три звена и более: 70т.
Осадка в порожнем – 0,46 м.
Осадка в грузу – 0,73 м.
Удерживающая способность ограждения У2 – У4 по ГОСТ 26804-2012
*Допускается кратковременное увеличение нагрузки, но не более 10% от расчетной
*Габариты ограждения могут изменяться по расстоянию, высоте и удерживающей способности
Однопутный с пешеходными тротуарами «МПКТ-2.2.7-45»


Звено «МПКТ-2.2.7-45»:
Габаритные размеры, мм: 12500 х 13500 х 2500-2900
Масса = 39 т.
Грузоподъемность моста: одно звено: 30т.; два звена: 50т.; три звена и более: 70т.
Осадка в порожнем – 0,50 м.
Осадка в грузу – 0,77 м.
Удерживающая способность ограждения У2 – У4 по ГОСТ 26804-2012
*Допускается кратковременное увеличение нагрузки, но не более 10% от расчетной
*Габариты ограждения могут изменяться по расстоянию, высоте и удерживающей способности
Двупутный без пешеходных тротуаров «МПКТ-2.0.7-70»


Звено «МПКТ-2.0.7-70»:
Габаритные размеры, мм: 12500 х 13500 х 2500-2900
Масса = 39 т.
Грузоподъемность моста: одно звено: 30т.; два звена: 50т.; три звена и более: 70т.
Осадка в порожнем – 0,50 м.
Осадка в грузу – 0,77 м.
Удерживающая способность ограждения У2 – У4 по ГОСТ 26804-2012
*Допускается кратковременное увеличение нагрузки, но не более 10% от расчетной
*Габариты ограждения могут изменяться по расстоянию, высоте и удерживающей способности
Двупутный с пешеходным тротуаром «МПКТ-2.1.7-70»


Звено «МПКТ-2.1.7-70»:
Габаритные размеры, мм: 12500 х 13500 х 2500-2900
Масса = 42 т.
Грузоподъемность моста: одно звено: 30т.; два звена: 50т.; три звена и более: 70т.
Осадка в порожнем – 0,51 м.
Осадка в грузу – 0,79 м.
Удерживающая способность ограждения У2 – У4 по ГОСТ 26804-2012
*Допускается кратковременное увеличение нагрузки, но не более 10% от расчетной
*Габариты ограждения могут изменяться по расстоянию, высоте и удерживающей способности
Двупутный с пешеходным тротуаром «МПКТ-2.2.7-72»


Звено «МПКТ-2.2.7-72»:
Габаритные размеры, мм: 12500 х 13500 х 2500-2900
Масса = 45 т.
Грузоподъемность моста: одно звено: 30т.; два звена: 50т.; три звена и более: 70т.
Осадка в порожнем – 0,54 м.
Осадка в грузу – 0,81 м.
Удерживающая способность ограждения У2 – У4 по ГОСТ 26804-2012
*Допускается кратковременное увеличение нагрузки, но не более 10% от расчетной
*Габариты ограждения могут изменяться по расстоянию, высоте и удерживающей способности
Однопутный без пешеходного тротуара «МПКТ-2.0.7-83»


Звено «МПКТ-2.0.7-83»:
Габаритные размеры, мм: 12500 х 13500 х 2500-2900
Масса = 42 т.
Грузоподъемность моста: одно звено: 30т.; два звена: 50т.; три звена и более: 70т.
Осадка в порожнем – 0,51 м.
Осадка в грузу – 0,82 м.
Удерживающая способность ограждения У2 – У4 по ГОСТ 26804-2012
*Допускается кратковременное увеличение нагрузки, но не более 10% от расчетной
*Габариты ограждения могут изменяться по расстоянию, высоте и удерживающей способности
Двупутный с пешеходным тротуаром «МПКТ-2.1.7-80»


Звено «МПКТ-2.1.7-80»:
Габаритные размеры, мм: 12500 х 13500 х 2500-2900
Масса = 45 т.
Грузоподъемность моста: одно звено: 30т.; два звена: 50т.; три звена и более: 70т.
Осадка в порожнем – 0,54 м.
Осадка в грузу – 0,81 м.
Удерживающая способность ограждения У2 – У4 по ГОСТ 26804-2012
*Допускается кратковременное увеличение нагрузки, но не более 10% от расчетной
*Габариты ограждения могут изменяться по расстоянию, высоте и удерживающей способности
Однопутный без пешеходного тротуара «МПКТ-2.0.8-45»


Звено «МПКТ-2.0.8-45»:
Габаритные размеры, мм: 12500 х 13500 х 2500-2900
Масса = 35 т.
Грузоподъемность моста: одно звено: 40т.; два звена: 60т.; три звена и более: 80т.
Осадка в порожнем – 0,41 м.
Осадка в грузу – 0,73 м.
Удерживающая способность ограждения У2 – У4 по ГОСТ 26804-2012
*Допускается кратковременное увеличение нагрузки, но не более 10% от расчетной
*Габариты ограждения могут изменяться по расстоянию, высоте и удерживающей способности
Однопутный с пешеходным тротуаром «МПКТ-2.1.8-45»


Звено «МПКТ-2.1.8-45»:
Габаритные размеры, мм: 12500 х 13500 х 2500-2900
Масса = 38 т.
Грузоподъемность моста: одно звено: 40т.; два звена: 60т.; три звена и более: 80т.
Осадка в порожнем – 0,43 м.
Осадка в грузу – 0,75 м.
Удерживающая способность ограждения У2 – У4 по ГОСТ 26804-2012
*Допускается кратковременное увеличение нагрузки, но не более 10% от расчетной
*Габариты ограждения могут изменяться по расстоянию, высоте и удерживающей способности
Однопутный с пешеходными тротуарами «МПКТ-2.2.8-45»


Звено «МПКТ-2.2.8-45»:
Габаритные размеры, мм: 12500 х 13500 х 2500-2900
Масса = 42 т.
Грузоподъемность моста: одно звено: 40т.; два звена: 60т.; три звена и более: 80т.
Осадка в порожнем – 0,46 м.
Осадка в грузу – 0,77 м.
Удерживающая способность ограждения У2 – У4 по ГОСТ 26804-2012
*Допускается кратковременное увеличение нагрузки, но не более 10% от расчетной
*Габариты ограждения могут изменяться по расстоянию, высоте и удерживающей способности
Двупутный без пешеходных тротуаров «МПКТ-2.0.8-70»


Звено «МПКТ-2.0.8-70»:
Габаритные размеры, мм: 12500 х 13500 х 2500-2900
Масса = 42 т.
Грузоподъемность моста: одно звено: 40т.; два звена: 60т.; три звена и более: 80т.
Осадка в порожнем – 0,46 м.
Осадка в грузу – 0,77 м.
Удерживающая способность ограждения У2 – У4 по ГОСТ 26804-2012
*Допускается кратковременное увеличение нагрузки, но не более 10% от расчетной
*Габариты ограждения могут изменяться по расстоянию, высоте и удерживающей способности
Двупутный с пешеходным тротуаром «МПКТ-2.1.8-70»


Звено «МПКТ-2.1.8-70»:
Габаритные размеры, мм: 12500 х 13500 х 2500-2900
Масса = 45 т.
Грузоподъемность моста: одно звено: 40т.; два звена: 60т.; три звена и более: 80т.
Осадка в порожнем – 0,43 м.
Осадка в грузу – 0,80 м.
Удерживающая способность ограждения У2 – У4 по ГОСТ 26804-2012
*Допускается кратковременное увеличение нагрузки, но не более 10% от расчетной
*Габариты ограждения могут изменяться по расстоянию, высоте и удерживающей способности
Двупутный с пешеходным тротуаром «МПКТ-2.2.8-72»


Звено «МПКТ-2.2.8-72»:
Габаритные размеры, мм: 12500 х 13500 х 2500-2900
Масса = 48 т.
Грузоподъемность моста: одно звено: 40т.; два звена: 60т.; три звена и более: 80т.
Осадка в порожнем – 0,51 м.
Осадка в грузу – 0,82 м.
Удерживающая способность ограждения У2 – У4 по ГОСТ 26804-2012
*Допускается кратковременное увеличение нагрузки, но не более 10% от расчетной
*Габариты ограждения могут изменяться по расстоянию, высоте и удерживающей способности
Однопутный без пешеходного тротуара «МПКТ-2.0.8-83»


Звено «МПКТ-2.0.8-83»:
Габаритные размеры, мм: 12500 х 13500 х 2500-2900
Масса = 45 т.
Грузоподъемность моста: одно звено: 40т.; два звена: 60т.; три звена и более: 80т.
Осадка в порожнем – 0,50 м.
Осадка в грузу – 0,81 м.
Удерживающая способность ограждения У2 – У4 по ГОСТ 26804-2012
*Допускается кратковременное увеличение нагрузки, но не более 10% от расчетной
*Габариты ограждения могут изменяться по расстоянию, высоте и удерживающей способности
Двупутный с пешеходным тротуаром «МПКТ-2.1.8-80»


Звено «МПКТ-2.1.8-80»:
Габаритные размеры, мм: 12500 х 13500 х 2500-2900
Масса = 48 т.
Грузоподъемность моста: одно звено: 40т.; два звена: 60т.; три звена и более:80т.
Осадка в порожнем – 0,51 м.
Осадка в грузу – 0,82 м.
Удерживающая способность ограждения У2 – У4 по ГОСТ 26804-2012
*Допускается кратковременное увеличение нагрузки, но не более 10% от расчетной
*Габариты ограждения могут изменяться по расстоянию, высоте и удерживающей способности
Однопутный без пешеходного тротуара «МПКТ-2.0.9-45»


Звено «МПКТ-2.0.9-45»:
Габаритные размеры, мм: 12500 х 13500 х 2500-2900
Масса = 37 т.
Грузоподъемность моста: одно звено: 45т.; два звена: 70т.; три звена и более: 90т.
Осадка в порожнем – 0,39 м.
Осадка в грузу – 0,70 м.
Удерживающая способность ограждения У2 – У4 по ГОСТ 26804-2012
*Допускается кратковременное увеличение нагрузки, но не более 10% от расчетной
*Габариты ограждения могут изменяться по расстоянию, высоте и удерживающей способности
Однопутный с пешеходным тротуаром «МПКТ-2.1.9-45»


Звено «МПКТ-2.1.9-45»:
Габаритные размеры, мм: 12500 х 13500 х 2500-2900
Масса = 41 т.
Грузоподъемность моста: одно звено: 45т.; два звена: 70т.; три звена и более: 90т.
Осадка в порожнем – 0,42 м.
Осадка в грузу – 0,73 м.
Удерживающая способность ограждения У2 – У4 по ГОСТ 26804-2012
*Допускается кратковременное увеличение нагрузки, но не более 10% от расчетной
*Габариты ограждения могут изменяться по расстоянию, высоте и удерживающей способности
Однопутный с пешеходными тротуарами «МПКТ-2.2.9-45»


Звено «МПКТ-2.2.9-45»:
Габаритные размеры, мм: 12500 х 13500 х 2500-2900
Масса = 44 т.
Грузоподъемность моста: одно звено: 45т.; два звена: 70т.; три звена и более: 90т.
Осадка в порожнем – 0,44 м.
Осадка в грузу – 0,75 м.
Удерживающая способность ограждения У2 – У4 по ГОСТ 26804-2012
*Допускается кратковременное увеличение нагрузки, но не более 10% от расчетной
*Габариты ограждения могут изменяться по расстоянию, высоте и удерживающей способности
Двупутный без пешеходных тротуаров «МПКТ-2.0.9-70»


Звено «МПКТ-2.0.9-70»:
Габаритные размеры, мм: 12500 х 13500 х 2500-2900
Масса = 44 т.
Грузоподъемность моста: одно звено: 45т.; два звена: 70т.; три звена и более: 90т.
Осадка в порожнем – 0,44 м.
Осадка в грузу – 0,75 м.
Удерживающая способность ограждения У2 – У4 по ГОСТ 26804-2012
*Допускается кратковременное увеличение нагрузки, но не более 10% от расчетной
*Габариты ограждения могут изменяться по расстоянию, высоте и удерживающей способности
Двупутный с пешеходным тротуаром «МПКТ-2.1.9-70»


Звено «МПКТ-2.1.9-70»:
Габаритные размеры, мм: 12500 х 13500 х 2500-2900
Масса = 47 т.
Грузоподъемность моста: одно звено: 45т.; два звена: 70т.; три звена и более: 90т.
Осадка в порожнем – 0,46 м.
Осадка в грузу – 0,77 м.
Удерживающая способность ограждения У2 – У4 по ГОСТ 26804-2012 *
Допускается кратковременное увеличение нагрузки, но не более 10% от расчетной
*Габариты ограждения могут изменяться по расстоянию, высоте и удерживающей способности
Двупутный с пешеходным тротуаром «МПКТ-2.2.9-72»


Звено «МПКТ-2.2.9-72»:
Габаритные размеры, мм: 12500 х 13500 х 2500-2900
Масса = 50 т.
Грузоподъемность моста: одно звено: 45т.; два звена: 70т.; три звена и более: 90т.
Осадка в порожнем – 0,48 м.
Осадка в грузу – 0,79 м.
Удерживающая способность ограждения У2 – У4 по ГОСТ 26804-2012
*Допускается кратковременное увеличение нагрузки, но не более 10% от расчетной
*Габариты ограждения могут изменяться по расстоянию, высоте и удерживающей способности
Однопутный без пешеходного тротуара «МПКТ-2.0.9-83»


Звено «МПКТ-2.0.9-83»:
Габаритные размеры, мм: 12500 х 13500 х 2500-2900
Масса = 47 т.
Грузоподъемность моста: одно звено: 45т.; два звена: 70т.; три звена и более: 90т.
Осадка в порожнем – 0,46 м.
Осадка в грузу – 0,77 м.
Удерживающая способность ограждения У2 – У4 по ГОСТ 26804-2012
*Допускается кратковременное увеличение нагрузки, но не более 10% от расчетной
*Габариты ограждения могут изменяться по расстоянию, высоте и удерживающей способности
Двупутный с пешеходным тротуаром «МПКТ-2.1.9-80»


Звено «МПКТ-2.1.9-80»:
Габаритные размеры, мм: 12500 х 13500 х 2500-2900
Масса = 50 т.
Грузоподъемность моста: одно звено: 45т.; два звена: 70т.; три звена и более: 90т. Осадка в порожнем – 0,48 м.
Осадка в грузу – 0,79 м.
Удерживающая способность ограждения У2 – У4 по ГОСТ 26804-2012
*Допускается кратковременное увеличение нагрузки, но не более 10% от расчетной
*Габариты ограждения могут изменяться по расстоянию, высоте и удерживающей способности
Уважаемые пользователи!
В связи с реконструкцией сайта некоторые страницы и ссылки в данный момент не работают.
Товары и услуги размещаются поэтапно.
Для уточнения информации по товарам и услугам просим обращаться по контактным данным указанным в вкладке "КОНТАКТЫ"
Если вы увидели какую-нибудь неточность, не правильные ссылки, опечатку и т.д. просим об этом сообщить.